| 会员登陆

九正建材网

新闻资讯

订阅信息 您所在的位置:九正建材网 > 企业动态 > 217㎡ 豪宅设计,实用又好看!

217㎡ 豪宅设计,实用又好看!

来源:网络 发布日期:2020-06-15 17:07:02 查看次数:
【九正建材网】住宅位于巴西 Estara deParaná面积217㎡,由archi设计公司设计,整体风格是现代简约家居设计。

住宅位于巴西 Estara deParaná

面积217㎡

由archi设计公司设计

整体风格是现代简约家居设计

温馨宜人,十分独具美学价值

【GIF动图】

整个住宅比较大

共分为六大区间

并大量融入了地质材料

例如石材玻璃、天然元素、矿物质和木材

个性化的设计令到整个家居更具特色

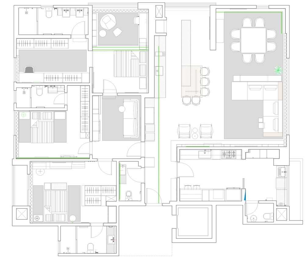
平面图

客厅

客厅的设计

非常注重色彩和线条比例的纯度

融入了大量的白灰,外加少些黑色点缀

只为保持空间本质

遵循more than less than的设计原则

餐厅

2个开放式餐厅

保证整体风格一致性

没有墙面的约束,整个空间更为明亮通风

将生活和接待体验作为一种新的奢侈品概念

厨房

餐厨一体化的设计节省了使用空间

定制的橱柜大面积使用灰色

墙面使用浅灰大板砖铺贴

深浅色在同一区域形成鲜明对比

卧室1

铁架式的挂墙、床边架

让整个房间看来工业风十足

卧室2

莫兰迪色系护墙板

搭配简约木质的电视背景墙

无疑是向往的小资生活

卧室3

大面积的灰色系

减少了色彩上的繁琐感

让整个空间显得更加和谐

卧室4

角落里休闲区与梳妆台相连

不仅合理的利用了空间

也满足了日常使用

卧室5

将空间中的设计元素、

色彩以及原材料简化到**少的程度,

让卧室简约大方,空间通透而不失细节,张弛有度。

衣帽化妆间

衣帽间与化妆间一体化设计

互不打扰,又相互配合

衣柜的储物功能特别强

梳妆台走的也是简约路线

实用主义者的**佳选择

卫生间

卫生间选用深黑色与木色相拼

使热情与沉静并存

在顶部灯光的照耀下

又多了一丝精致感

项目空间信息:

空间名称:Capri现代简约家居

空间类型:住宅空间、平层住宅、现代简约住宅

空间地址:巴西 Estara deParaná

设计公司:archi [lab]

空间面积:217平方米

空间主材:大理石、瓷砖、木饰面、木地板、玻璃、乳胶漆

空间摄影:Isabela Mayer – Triad Photo

发表评论

关于九正 会员服务 广告服务 访客留言 企业邮箱 网站地图 建材专栏 地区专栏 产品归档 产品地图 服务条款
九正建材网 版权所有©2000-2025      九正建材网全国免费服务热线:400 6464 001 传真:028-83370196